Jednotka č. 12

4kk / 124.49 m²

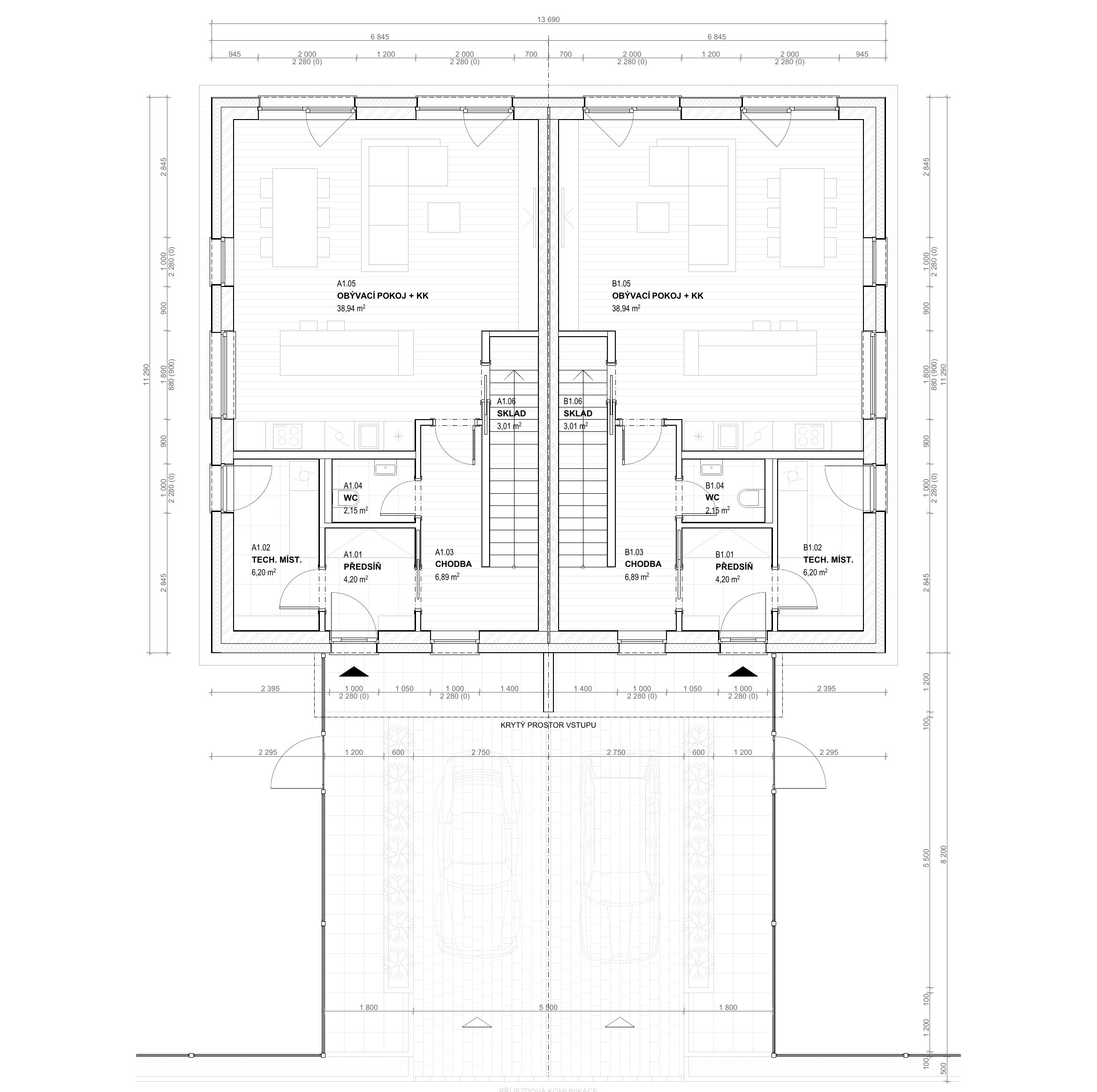
  • B1.01   Předsíň4.20 m²
  • B1.02   Tech. míst. + sklad6.20 m²
  • B1.03   Chodba6.89 m²
  • B1.04   WC2.05 m²
  • B1.05   Obývací pokoj + kuchyň38.94 m²
  • B1.06   Sklad3.01 m²
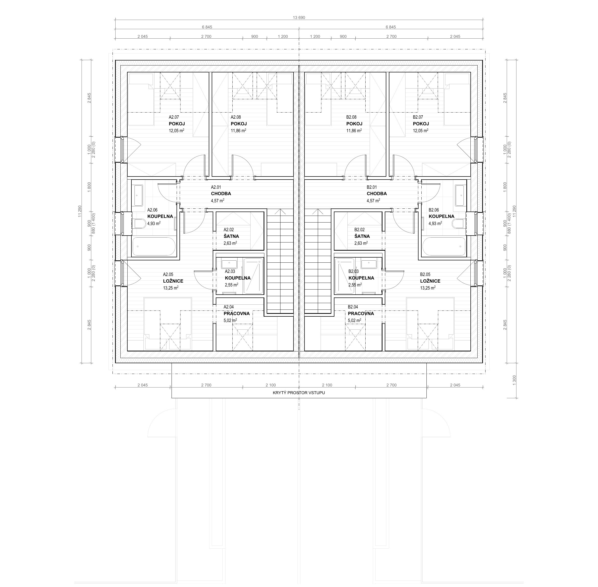
  • B2.01   Chodba4.57 m²
  • B2.02   Šatna2.63 m²
  • B2.03   Koupelna2.55 m²
  • B2.04   Pracovna5.02 m²
  • B2.05   Ložnice13.25 m²
  • B2.06   Koupelna4.93 m²
  • B2.07   Pokoj12.05 m²
  • B2.08   Pokoj11.86 m²

  • CELKOVÁ PODLAHOVÁ PLOCHA124.49 m²
  • PLOCHA POZEMKU572 m²
  • CENA9 540 000 Kč
  • STAVRezervováno

1. NP

Půdorys 1.NP

2. NP

Půdorys 2.NP
Galerie Galerie Galerie

Napište nám

*POVINNÉ POLOŽKY

Kliknutím na tlačítko 'Odeslat' vyjadřuji souhlas se zpracováním osobních údajů.