Jednotka č. 3

4kk / 111.76 m²

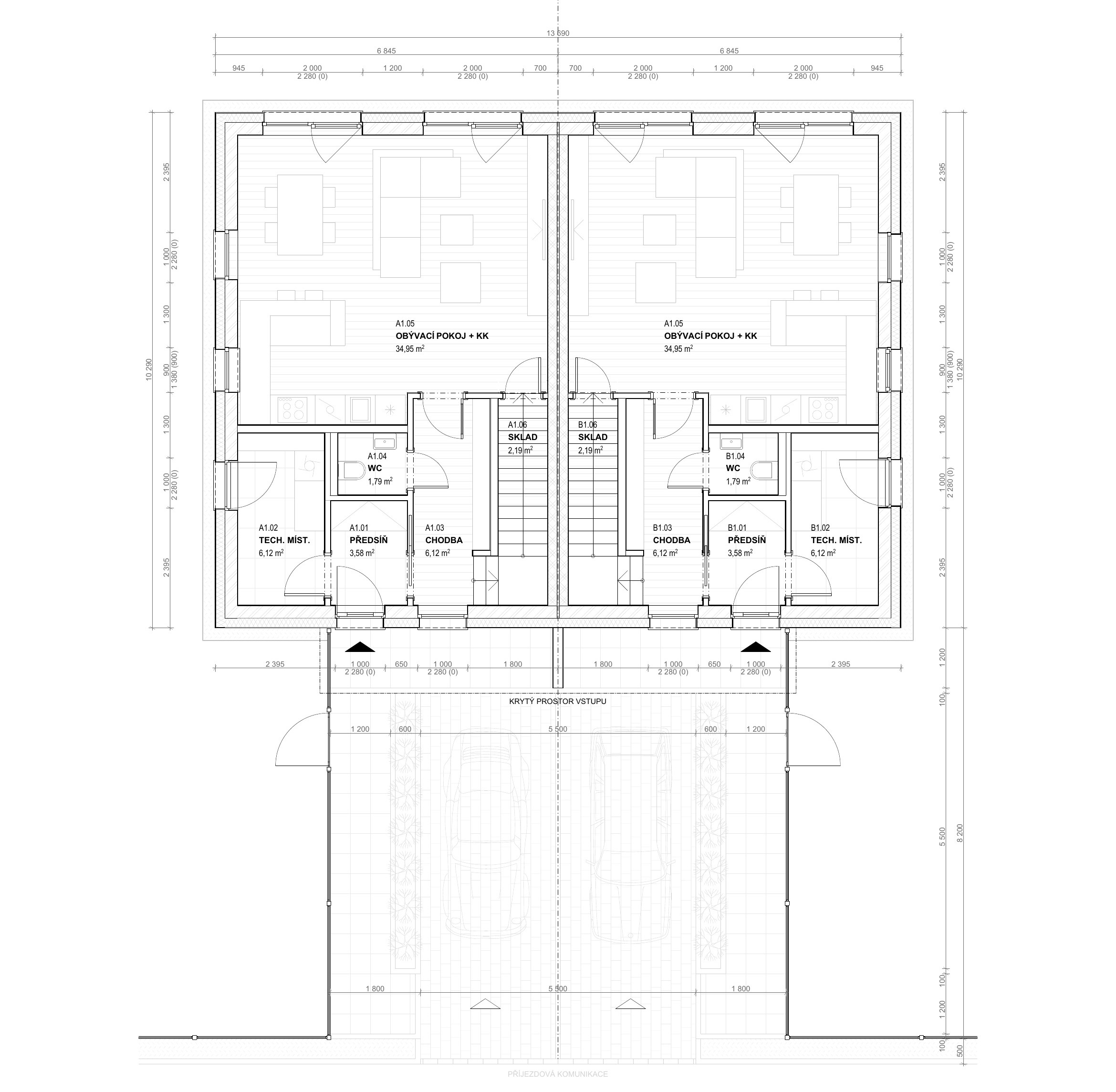
  • A1.01   Předsíň3.58 m²
  • A1.02   Tech. míst. + sklad6.12 m²
  • A1.03   Chodba6.12 m²
  • A1.04   WC1.79 m²
  • A1.05   Obývací pokoj + kuchyň34.95 m²
  • A1.06   Sklad2.19 m²
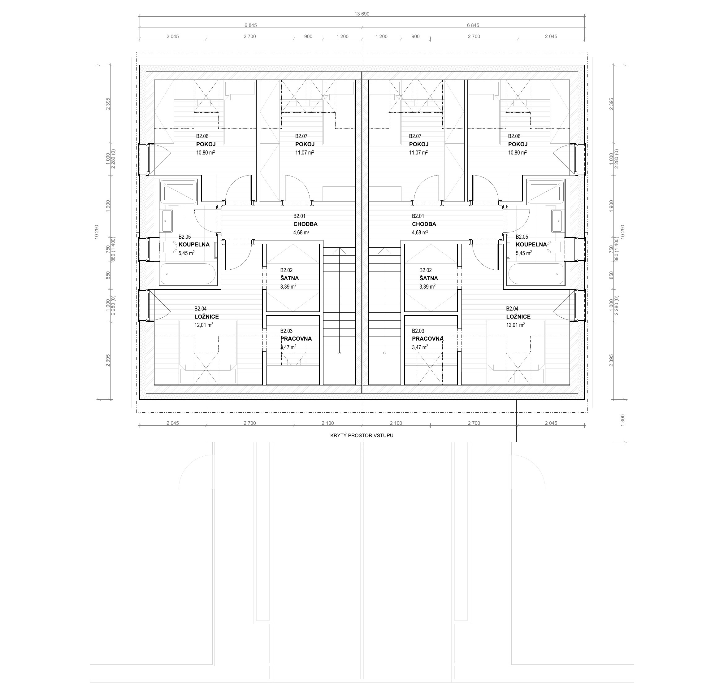
  • A2.01   Chodba4.68 m²
  • A2.02   Šatna3.39 m²
  • A2.03   Koupelna5.45 m²
  • A2.04   Pracovna3.47 m²
  • A2.05   Ložnice12.01 m²
  • A2.06   Koupelna5.45 m²
  • A2.07   Pokoj10.80 m²
  • A2.08   Pokoj11.07 m²

  • CELKOVÁ PODLAHOVÁ PLOCHA111.76 m²
  • PLOCHA POZEMKU568 m²
  • CENA9 380 000 Kč
  • STAVVolný

1. NP

Půdorys 1.NP

2. NP

Půdorys 2.NP
Galerie Galerie Galerie

Napište nám

*POVINNÉ POLOŽKY

Kliknutím na tlačítko 'Odeslat' vyjadřuji souhlas se zpracováním osobních údajů.